Explosion-Proof Inline Monitor
Intrinsically Safe Model
Inline Refractometer
Detects blend ratios in real time and provides feedback to prevent non-conforming products.
Performs a final check to ensure the product is within specifications before filling. It can also be used to reduce liquid loss by managing the switchover to water during cleaning.
Knowing the Brix of the extracted liquid allows you to manage the extraction rate. Depending on the extraction rate, re-extraction may be performed.
Continuously confirms that the concentration is within specifications. Inline measurement is a full-volume inspection.
Contamination with cleaning solution (water) /
Detect concentration changes in real time to identify nonconformities
Human error with batch measurement
Human error is impossible with full-volume automatic measurement
Defects in raw materials or upstream processes
Block nonconformities within each process by introducing equipment for each process
Nonconformities with unknown causes
Data storage allows for cause investigation


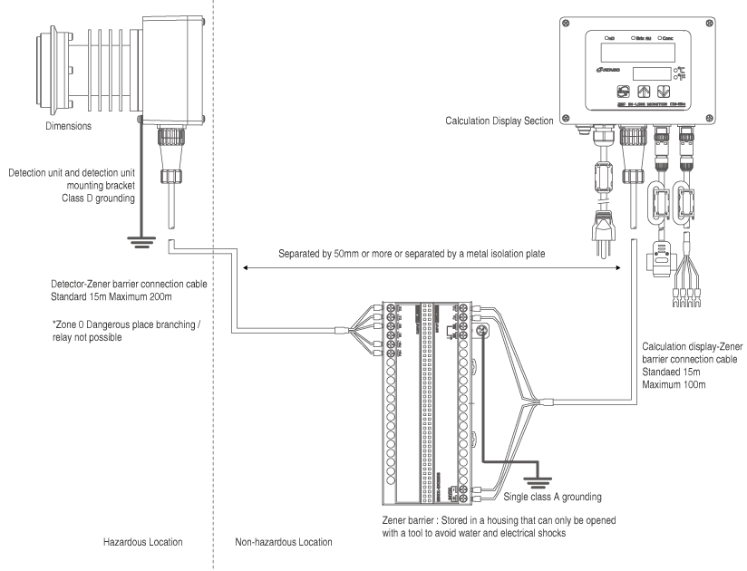
■ Explosion-Proof Specifications
| Explosion-Proof Guidelines | Ex Guidelines 2015 |
| Explosion-Proof Structure | Intrinsically Safe |
| Explosion-Proof Performance | EX ia IIB T3 Ga Ta=40℃ |
| Installation Location | Zone 0-2 Hazardous Location |
■ Zener Barrier Included as Standard
Explosive gases are gases that have the property of exploding when mixed with air within a certain concentration range.
In environments such as chemical plants, refineries, and food factories, if gas leaks or is generated,it may ignite due to sparks or high temperatures, resulting in a greatly increased risk of explosion.
When using a refractometer in an environment where explosive gases are present,it must comply with Zone 0 (an environment where explosive gases are always present), and an intrinsically safe explosion-proof structure is the only design that can be used.
Therefore, the intrinsically safe CM-ISα is capable of performing accurate measurements while ensuring safety.
Measures a wide range from 0.00 to 80.0% Brix with high accuracy of ±0.1%. A wide range of dedicated scales and an intrinsically safe explosion-proof model meet various needs.
Equipped with a DC 4mA to 20mA current output function for use with a recorder. Equipped with RS-232C data output for PC use.
Equipped with an automatic temperature compensation function, it can handle a wide temperature range from 5°C to 100°C. The wetted surface can withstand temperatures up to 160°C, allowing for safe CIP and SIP cleaning.
We offer customized wetted surfaces for measuring chemical samples. The standard stainless steel specification can be upgraded to Hastelloy or titanium. Because all metals are machined and polished in-house, we are flexible in accommodating material changes.
Our commitment to long-term use leads to high durability and a low failure rate. In the unlikely event of repair, we will respond promptly and courteously.
If you are able to provide your own wiring and power, there is no additional installation fee. If you have any concerns, please contact us for a consultation.
The product meets the surface finish level Ra 0.8 or less required by the EHEDG and 3-A Sanitary Standards for wetted parts, and also meets the stainless steel composition requirements stipulated in EC No. 1935/2004 and FDA (21 CFR)-GRAS (Generally Recognized as Safe).
Wastewater & Wastewater
Surface Treatment Agents
DMF, DMAC, DMSO
White Release Agents
Hydrogen Peroxide/Caustic Soda
Photo Resist
Plating Solution (Sulfuric Acid)
Acrylonitrile / Methyl Methacrylate / Polystyrene Resin / Styrene / Octane
Methyl Methacrylate / Octane / Toluene / Hexane / Cyclohexane
Toluene / Hydrochloric Acid / Acetic Acid / Sulfuric Acid / Nitric Acid
Acetic Acid / Sulfuric Acid / Nitric Acid
Hydrogen Acid / Nitric Acid / Benzene
High-Concentration Ethanol / Hexane
Hydrogen Acid / Sulfuric Acid / Nitric Acid / Acetaldehyde / Acetonitrile / Benzene / DMAC
Octane (Quick-drying varnish and enamel raw materials) / Isobutylbenzene (Liquid Crystal Raw Material)
The wetted surface is completely flat.
This fully flat design minimizes adhesion of sample liquid to the prism surface, ensuring hygienic performance. To eliminate even the slightest step between the prism surface and the prism stage, the prism stage is re-polished to within 1/100 mm during manufacturing.
The previous π-type piping has been eliminated, and the shape of the original straight and L-type sample introduction sections has been improved. This eliminates liquid accumulation and improves replacement performance, thereby improving temperature detection capabilities.
For situations where adhesion to the prism surface is unavoidable due to the nature of the sample liquid during long measurements, we offer the US-α/Prism Wiper Anti-Adhesion Ultrasonic Device.
Eliminates the need to stop the line or repeatedly remove the in-line refractometer to clean the prism surface.
Custom-made inline wetted parts materials available
We offer customized wetted surfaces for measuring chemical samples. The standard stainless steel specification can be upgraded to Hastelloy or titanium. Because all metals are machined and polished in-house, we are flexible in accommodating material changes.
SUS (standard specification)
Stainless steel with high strength and excellent corrosion resistance. Sanitary specification.
Titanium
A metal that is strong, lightweight, corrosion-resistant, and heat-resistant. It is more corrosion-resistant than stainless steel, especially to salt.
Hastelloy
An alloy with high corrosion and heat resistance. It is particularly resistant to hydrochloric acid and sulfuric acid, and its corrosion resistance is not easily compromised even at high temperatures.
We also offer piping that complies with the Varivent standard.
Please contact us for details.
What is VARIVENT®?
VARIVENT® is a standard for piping installation. It is primarily used in Europe. It can be installed by adjusting the dimensions of the piping installation to comply with the Varivent standard. The PRM series and CM series also offer piping that complies with the Varivent standard. * VARIVENT® is a registered trademark of GEA Process Engineering, Inc.
Inline Meter Guide
Proposal for Automated Management of Cutting Oil,